MidNite Solar E-Panel Review
The MidNite Solar E-Panel is a quick and easy way to install an OutBack or Magnum inverter for your home or cabin. It comes standard with the basic over-current protection and disconnects required to install your renewable energy system safely, quickly and to NEC Code. It can also expand to grow as your needs arise.
The picture at right shows an OutBack inverter mounted on an E-Panel. OutBack and Magnum inverters mount on a unique hinged door to keep the footprint of the system as small as possible. Mounting brackets are included to aid in one person installations.
When the pre-wired MidNite E-Panels first came out late in 2005, the choices were easy. You were limited to an OutBack inverter and all you had to do was to pick the correct breaker size. Midnite Solar managed to accommodate many dealer and installer requests, but along with these enhancements come additional choices.
The enclosure of the Outback version is only 9.5 inches wide and 25 inches tall. It's main features are small size and low cost. The picture to the right doesn’t show it, but the insides have undergone a radical change in the form of individual AC busbars rather than the single AC block. This change allows up to 14 connections per circuit rather than only 5.
Another configuration to this series is the availability of an aluminum enclosure vs. the standard steel unit. Steel units are powder coated gray and the aluminum is white. The white aluminum E-Panels are used in places like Hawaii or Maine or wherever salt air is a factor. Aluminum E-Panels also weigh 9 pounds less than the gray steel versions. Some customers just like the look of white, so order aluminum just for that reason.
These E-Panels comes standard with the AC bypass and AC input disconnect pre-wired, din rails for 6 additional 13mm wide AC or DC breakers, battery breaker installed with plus and minus cables for the inverter, 500 amp/50mV shunt, battery plus busbar, battery minus busbar, AC busbars, ground busbar, DC cover, AC flex conduit tubing with couplers, MX60/Classic mounting bracket, grommets and bushings, numerous knock outs for cable entry and exit, lots of hardware for mounting inverter, charge controller etc, wall mounting brackets, installation instructions, wiring diagram mounted on the door, and a tech support phone number. These work well, even at midnight if you use solar panels to charge your batteries during the day.


Basic enclosures:
Model numbers and descriptions for regular OutBack E-Panels:
- MNE125ST 125 amp breaker in the gray steel chassis, right hand hinge & breakers
- MNE175ST 175 amp breaker in the gray steel chassis, right hand hinge & breakers
- MNE250ST 250 amp breaker in the gray steel chassis, right hand hinge & breakers
- MNE125AL 125 amp breaker in white aluminum chassis, right hand hinge & breakers
- MNE175AL 175 amp breaker in the white aluminum chassis, right hand hinge & breakers
- MNE250AL 250 amp breaker in the white aluminum chassis, right hand hinge & breakers
Model numbers and descriptions for regular Magnum E-Panels:
- MNE175STM 175 amp breaker in the gray steel chassis, right hand hinge & breakers
- MNE175ALM 175 amp breaker in the white aluminum chassis, right hand hinge & breakers
- MNE250STM 250 amp breaker in the gray steel chassis, right hand hinge & breakers
- MNE250ALM 250 amp breaker in white aluminum chassis, right hand hinge & breakers

Magnum Enclosure Features:
Stacking horizontal or vertical is easy. Knock outs align top and bottom for vertical stacking left hand door required for horizontal stacking, exhaust opening shield included.
- Small size compared to existing disconnect and over current solution
- Pre-wired to save time, money and complexity. All field wiring connections are clearly labeled
- White powder coated aluminum or standard gray powder coated steel
- Easily expands to accoummodate additional inverters
- Six slots for din rail breakers, PV, Wind, Hydro, AC distribution
- Pre-wired 50 amp 240VAC rated Inverter AC bypass switch
- Pre-wired 50 amp 240VAC rated AC Input disconnect
- Bus bars for Battery Plus, Battery Minus and ground
- Mounting hardware for Inverter and charge controller
- Mounting brackets for hanging E-Panel on wall
- Heavy duty 175 amp AC distribution block
- ETL listed to UL standards
- Standard Right hand hinged door to mount inverter
- Knockouts for AC and DC conduits
- Charge control bracket (CCB)
- Cut outs for two GFCI outlets
- DC Inverter battery breaker
- Internal inverter cables
Call us for information on Midnite E-Panels.
Call toll-free (877) 297-0014 to speak with an experienced representative.
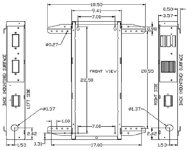
Dimensional Drawings for Outback and Magnum E-Panels
Click on a link below:

Basic E-Panel
Outback E-Panel Dimensions:
Magnum E-Panel Dimensions
Magnum Epanel Bottom View
The E-Panel Lite for Xantrex inverters that mounts next to the inverter is also available.
Main breaker, inverters cables, 500-amp/50mv hunt or battery monitoring systems, 175-amp AC-power distribution block, 50-amp AC-input disconnect for generator or utility, 50-amp AC bypass switch are included and pre-wired. It comes with a mounting bracket for an OutBack MX60. Cut outs for mounting up to six additional 13mm wide DIN rail mount breakers are provided as well as a cut out for a GFCI style AC outlet.
